意享天地(环球店)

日期:2024-08-22 / 人气: / 作者:四维空间设计

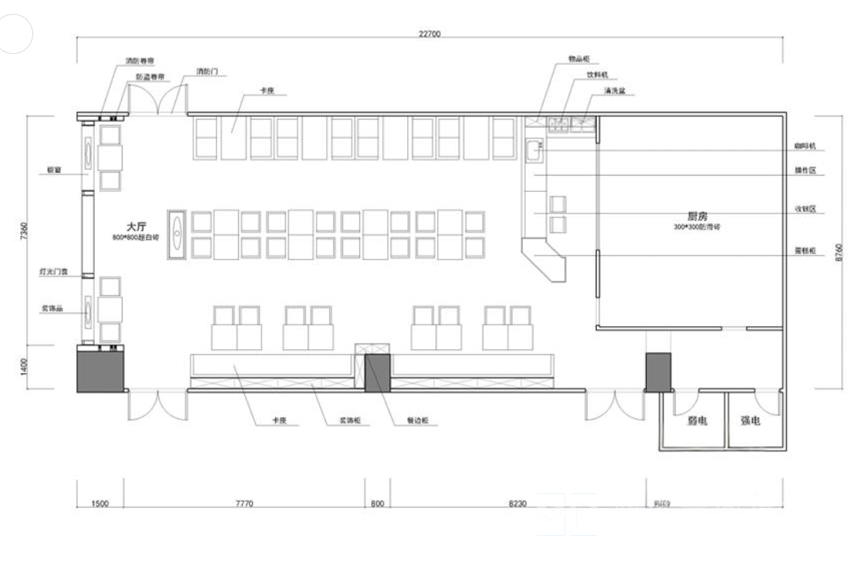
面        积:350平米
类        型:餐饮
主要材料:软木,雪花白大理石皮革等
风格定位:温馨时尚
意享天地(环球店)意享天地(环球店)意享天地(环球店)意享天地(环球店)

版权声明:本文由四度空间(SDD)装饰设计有限公司-原创设计,如需转载请注明出处。


上一篇:← 下一篇:→


欢迎致电 15882666795 OR 咨询---《官方微信号》---

Go To Top 回顶部